
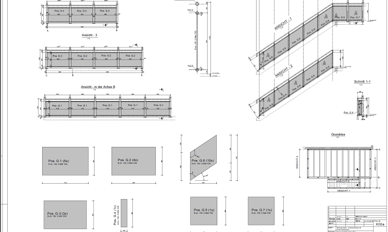
Aufstockung und Ausbau der Terrassen und Freischankflächen einer Gaststätte
Fertigstellung: 2011
Bauherr: privat
Erbrachte Leistung:
Fertigstellung: 2011
Bauherr: privat
Erbrachte Leistung:
- statische Berechnung
- Detailzeichnungen
- Bauüberwachung

Aufstockung und Ausbau der Terrassen und Freischankflächen einer Gaststätte
Fertigstellung: 2011
Bauherr: privat
Erbrachte Leistung:
Fertigstellung: 2011
Bauherr: privat
Erbrachte Leistung:
- statische Berechnung
- Detailzeichnungen
- Bauüberwachung

Aufstockung und Ausbau der Terrassen und Freischankflächen einer Gaststätte
Fertigstellung: 2011
Bauherr: privat
Erbrachte Leistung:
Fertigstellung: 2011
Bauherr: privat
Erbrachte Leistung:
- statische Berechnung
- Detailzeichnungen
- Bauüberwachung